Новости Обсуждения новостей » | Последние новости
Все новости за месяц | |||||||||||||||||||||||||||||||||||||||||||||||||||||||||||||||||
Снести и застроить | ||||||||||||||||||||||||||||||||||||||||||||||||||||||||||||||||||
| 14 блокированных домов участок за ПТУ застроит "Стройинвест" 17 января 2019 - комментарии: 8 |
| Дом с обременением Треть пятиэтажки по Зернова отдадут очередникам 23 августа 2018 - комментарии: 15 |
| Тридцать три коробки К списку сносимых добавили домов по Зернова 16 июля 2018 - комментарии: 5 |
Все новости по теме Саровская реновация
Комментарии
![]() | ДимДимыч # 25 мая’17, 13:29 Это ещё при Димитрове задумывали и рассчитывали. Туда нужно тащить новые сети. Энергетики там не хватает. Так что по большому счёту не седлают НИКОГДА! Ответить Правка |
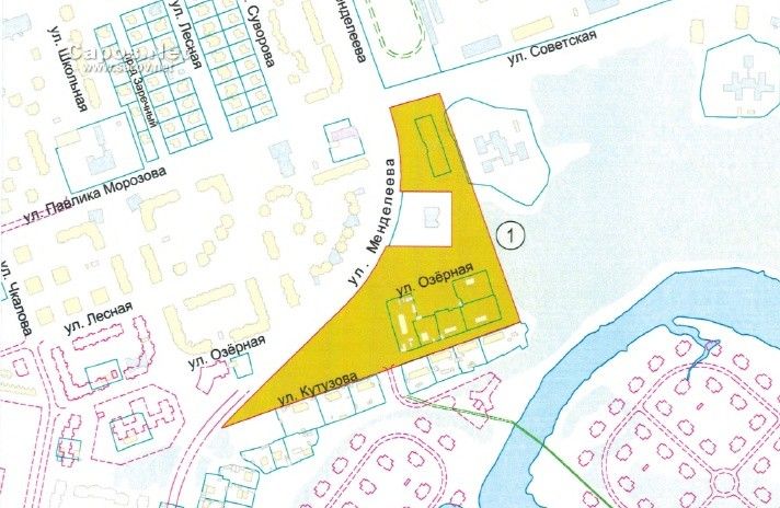
Два участка из трех — Зернова и Менделеева — граничат с новыми районами, застраиваемыми в настоящий момент. Ответить Правка |
Ну почему же не сделают?! Карандашкина ведь нет, не скажу, что с ним исчезла коррупция и воровство, но дело, думаю будет двигаться в гору. Погост он не хотел обустраивать, причем бесплатно предлагали подрядчики (заберут только лес), хоронили людей в проездах, на тропках, на площадке 1,5*2. А сейчас, гляди ж ты- скоро разровняют. Ледовый дворец не строили, дороги не реконструировали, а сейчас работа кипит, коллапс на дорогах из- за того что долго телились. Ответить Правка |
![]() | ДимДимыч # 25 мая’17, 13:30 Пардон. Не сделают никогда. Ответить Правка |
![]() | qw # 25 мая’17, 14:22 Реновация шагает по стране. Ответить Правка |
![]() | Владимир Викторов # 25 мая’17, 14:46 Еще ничего не приняли, а сараи на Октябрьском уже поджигают, молодцы какие. Ответить Правка |
Так за них застройщику тоже придется что-то компенсировать. Ответить Правка |
Ответить Правка |
А вот, "лихие 90-е", кудахтахтах! Вот, что бывает, когда делаешь цапков основой своей "Вертикали власти"(тм). Что-то я не помню, чтобы в "лихие 90-е" в Сарове среди бела дня так нагло и безнаказанно жгли имущество граждан. Ответить Правка |
Сараи горели всегда. И не обязательно от поджога. Многие там держат живность и для её утепления ставят всякие нагревательные приблуды. Работал пожарным именно в лихие 90, поэтому знаю, что говорю. Ответить Правка |
22 мая днем кто-то грел сарай обогревателем? Хорошая попытка, но нет. Ответить Правка |
Вообще-то, речь зашла про "лихие 90". Утверждаю ещё раз, горело и тогда. Кстати, 22 мая было довольно прохладно. Есть какие-либо доказательства, что это был именно поджог? И что в этом задействована "вертикаль власти"? Ответить Правка |
Говорят, на местн пожара видели депутата Денденкова. Но может он просто из Рябины шел. Ответить Правка |
О, господи, опять эта проклятая непределенность! Ответить Правка |
Владимир Викторович, не думаю, что за них дадут жителям компенсацию. Это самострой, незаконный, неучтенный, пожароопасный, неэстетичный СА-МО-СТРОЙ! Ответить Правка |
Это не самострой. Сараи были построены вместе с домами для хранения в них дров — тогда эти дома отапливались дровами — и с тех пор эти сараи находятся в пользовании жильцов. Что там с правами собственности на них — надо разбираться, конечно, полагаю, что всё сложно и запутанно. Ответить Правка |
Точно!Согласен. Но... бабушка приватизировала квартиру, сарай она не приватизировала, пользуется и на правах муниципальной собственности. Действительно запутанно. Может поэтому и жгут, чтоб не давать лишние метры в новой квартире. Ответить Правка |
![]() | саровчанин47 # 25 мая’17, 15:58 А "Пицунда" устояла опять! )))) Ответить Правка |
Мы лёгких путей не ищем. Там не интересно. Расселять никого не надо. А там глядишь снова откроют. Ответить Правка |
Так она — федеральная, и земля под ней — федеральная. Ответить Правка |
Когда именно КБ-50 передало ее в муниципалитет? Ответить Правка |
![]() | саровчанин47 # 26 мая’17, 10:14 http://саров.рф/news/11172/%D0%9F%D1%81%D0%B8%D1%85%D0%BE%D0%BD%D0%B5%D0%B2%D1%80%D0%BE%D0%BB%D0%BE%D0%B3%D0%B8%D1%87%D0%B5%D1%81%D0%BA%D0%BE%D0%B3%D0%BE%20%D0%B4%D0%B8%D1%81%D0%BF%D0%B0%D0%BD%D1%81%D0%B5%D1%80%D0%B0%20%D0%BD%D0%B0%20%D1%83%D0%BB%D0%B8%D1%86%D0%B5%20%D0%97%D0%B5%D1%80%D0%BD%D0%BE%D0%B2%D0%B0%20%D0%BD%D0%B5%20%D0%B1%D1%83%D0%B4%D0%B5%D1%82 А вот передали или нет, я не нашёл... Ответить Правка |
![]() | федя # 27 мая’17, 18:09 Великие маструбаторы бредят светлыми идеями .......... Очередной бездельный понос. Ответить Правка |
![]() | Владимир Викторов # 27 мая’17, 21:41 [правка: 27 мая’17, 21:42] Ссылка на саму программу уже была в тексте новости: Программа сноса Обсуждение программы депутатами на комитете 23 мая (с 1:07:55) Ответить Правка |
Про Пицунду тут отдельно говорят, что да, участок передан в муниципалитет, и сейчас готовятся документы для его продажи отдельно от этой программы. Так что ждите там очередной шоппинг молл. Ответить Правка |
![]() | вокзал # 30 мая’17, 10:56 А про привокзальную опять тишинааааааааааааааааааа..... ЕПППППП....... что ж за такое??? Ответить Правка |
![]() | ДенисR # 06 июн’17, 23:15 [правка: 07 июн’17, 00:08] https://news.mail.ru/economics/29993118/?frommail=1 В Кремле считают преждевременным распространять проект реновации на всю РФ... Ответить Правка |
Не знаю. откуда вы все информацию черпаете. И про Привокзальную говорилось. Вот ссылка, посмотрите. там есть немного в конце vk.com/photo-149119394_456239094 А вот про саму программу развития застроенных территорий https://vk.com/photo-149119394_456239074 Все, что на данный момент пока известно, там есть. Об остальном власти пока сами не говорят. потому как не знают. А на месте Пицунды. кстати. обсуждался жилой дом. Не ТЦ Ответить Правка |
Вот более корректная ссылка https://vk.com/photo-149119394_456239094 Ответить Правка |
Написать
Если вы хотите ответить кому-то, нажмите ссылку "Ответить" под его комментарием. Другие советы






