Убрать
Регистрация
email:

Забыли?
Пароль:

Вконтакте  Facebook  Мой мир mail.ru  Одноклассники

Объявления: Недвижимость: Сдаю



Все объявленияНедвижимость Авто Работа в Сарове Компьютеры Телефоны и гаджеты Детям Все для дома Домашние питомцы Услуги Реклама Ищу тебя! Прочее

Сдается офис (Зернова 23)

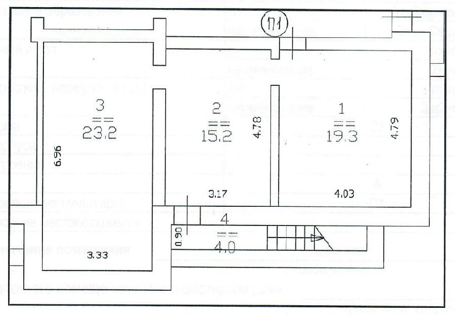
Адрес: Зернова 23 Показать на карте (кирпич), этаж: -1/0.

Площадь общая: 62 м², потолки: 2.5 м

Санузел: совмещенный


Помещение располагается на пересечении улиц Зернова и Садовая. Отдельный вход.
Красная линия, место под рекламную вывеску, большой пешеходный и автомобильный трафик.
Рядом остановки маршрутного автотранспорта, парковки, крупный торговый центр.
В помещении сделан хороший ремонт.
Есть все коммуникации: водоснабжение, отопление, канализация, выделенная линия интернет, видеонаблюдение.

Расчётная мощность электроснабжения 15 КВт.

Отлично подойдет под офисную деятельность, услуги, офис продаж, аптеку, ателье и т.д.

Оперативный показ. т. +7 (905) 011-83-68


Цена: 30 000 руб.

11 марта 2021, 14:19 - Юрий
Просмотров в ленте: 11687 / Кликов на объявление: 1816
 


Фото из справочника домов


Комментарии отключены
 

Вы смотрели:

Сдается офис (Зернова 23)

Вакансия: установщик готовой продукции

Сдается 2-к. квартира (Духова 4)

Сдается 1-к. квартира (улица Куйбышева, 17)

Вакансия: Специалист по неразрушающему контролю

Сдается 2-к. квартира (г. Саров, ул. Чапаева, д. 27,кв. 5)

Вакансия: Младший воспитатель

Вакансия: Пресовщик

Сдается 1-к. квартира (проспект Ленина, 33)

Вакансия: продавец-консультант

Вакансия: продавец-консультант

Сдается 1-к. квартира (улица Бессарабенко, 7)

Сдается 1-к. квартира (Ленина, 23)

Вакансия: Повар

Вакансия

Вакансия

Вакансия: Уборщица магазина

Вакансия: Требуется фрезеровщик 5-6 разряда

Вакансия: Автомойщик

Вакансия: Упаковщик на склад чая

Вакансия: помощник руководителя

Вакансия: Горничная

Вакансия: Требуется наладчик автоматов и полуавтоматов.

Вакансия: Требуется токарь 4-6 разряда

Вакансия

Вакансия: Водитель автобуса

Вакансия: инженер по разработке и строительству систем безопасности

Вакансия: техник по обслуживанию

Вакансия: Требуется токарь 5-6 разряда

Вакансия: Требуется автоэлектрик

Вакансия: сметчик

Вакансия: Требуется фрезеровщик 4-6 разряда

Вакансия: Требуется наладчик холодно-штамповочного оборудования.

Вакансия: техник по обслуживанию систем безопасности

Вакансия: Грузчик на склад консервированной продукции

Вакансия: Мастер/помошник мастера

Прочее

Прочее

Прочее

Прочее

Прочее

Прочее

Реклама

Прочее

Реклама

Вакансия: санитарка

Вакансия: Администратор проектов

Вакансия: Оператор-упаковщик

Вакансия: Охранник

Вакансия: Медицинская сестра

Вакансия: Уборщица

Вакансия: Продавец-Кассир

Вакансия: Уборщица

Вакансия: Учетчик(бухгалтер)

Вакансия: сиделка

Вакансия: Сервисный инженер

Вакансия: Упаковщик

(очистить)